Carport/Garage pour Camping car ou Bateau 32m2
Rupture de stock
? Garage Bois pour Camping-Car ou Bateau – Sur Mesure ⚓
? Qualité et solidité
Bois sapin de première catégorie ?
Madrier épais de 58 mm pour une durabilité maximale ?
Toiture 2 pentes avec couverture en shingle pour une protection optimale ?️
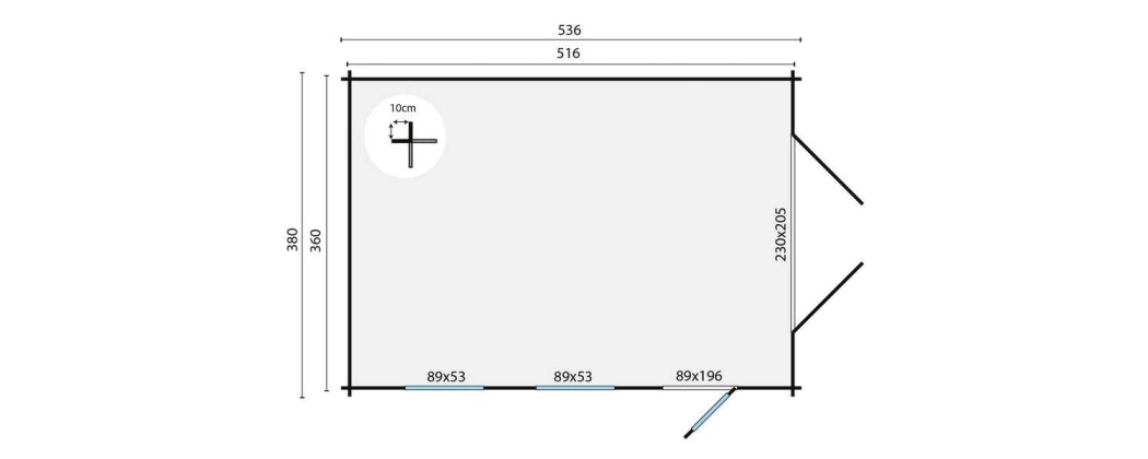
? Caractéristiques principales
Surface de 32 m² pour accueillir vos véhicules avec confort ?
Dimensions : 400 cm x 800 cm ?
Réalisation sur mesure pour s’adapter à vos besoins spécifiques ✅
✨ Pourquoi choisir ce garage ?
Construction robuste et durable pour protéger vos biens
Design élégant qui s’intègre parfaitement dans votre jardin ou terrain ?
Espace pratique et fonctionnel pour camping-car, bateau ou stockage ?️
Nous vous proposons un large choix d'options pour ce chalet
13 390,00 €

